
項目名稱:昆明盤龍紅星美凱龍家居生活廣場
項目性質:商業
申報類別:建設工程規劃許可證
申報單位:昆明迪肯商貿有限公司
規劃局審批經辦:昆明市規劃局盤龍分局
公示類別:批前公示
公示時間:2017年1月11日至2017年1月19日
公示地點:昆明城市規劃展覽館及項目現場
公示網址:http://ghj.km.gov.cn/
公示媒體:昆明日報
公示組織單位:昆明市規劃編制與信息中心
項 目 簡 介
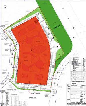
項目位于昆明市盤龍區灃源路和昆曲高速交叉口西南方向,項目地塊北臨灃源路,南臨杭瑞高速,西臨規劃道路,交通便利,地理位置優越。
規劃申報指標
用地面積:35149.87平方米
總建筑面積:168787.78平方米
地上建筑面積:119426.9平方米
地下建筑面積:49360.88平方米
綠地率:10%
容積率:3.398
建筑密度:61.1%
備注:
對以上公示項目有異議者,請在公示期限內以書面形式將意見和建議反饋到昆明市盤龍區拓東路122號昆明城市規劃展覽館3樓或昆明呈貢區市級行政中心4號樓3樓昆明市規劃編制與信息中心385室。聯系電話:63194144。
本站轉載文章和圖片出于傳播信息之目的,如有版權異議,請在3個月內與本站聯系刪除或協商處理。凡署名"云南房網"的文章未經本站授權,不得轉載。爆料、授權:news@ynhouse.com。








熱門評論